Квартира на продажу - Объект №6344

Молодежная ул.

Объект № 6344

Квартира 5 360 000 ₽

Железноводский п., Предгорный Район, Молодежная ул.

Андрей

8 906 498-6144

Скачать PDF

При звонке назовите Объект № 6344, и мы быстрее найдем необходимую информацию!

Используйте удобный мессенджер и задайте вопрос

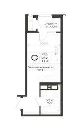
Характеристики объекта

  • Комнаты: Смежные
  • Кол. ком.: 1
  • Сан. узел: Совмещенный
  • Кол. сан. уз.: 1
  • Площадь: 22,80/17/1
  • Этажность: 4/12
  • Ремонт: Без ремонта
  • Балкон: Лоджия
  • Кол. балконов: 1
  • Материал стен: Монолитный
  • Отопление: Автономное
  • Высота потолка: 3.00

Описание


Продаётся студия  22 м² квартира в новом жилом комплексе в городе Железноводск! Просторная квартира на 4 этаже из 12 этажного дома.
Комплекс выполнен в современной архитектурной стилистике, характерной для крупных городов. 

Основные преимущества: • новый кирпичный дом • закрытая территория (безопасность и комфорт) • собственная котельная (экономия на коммунальных платежах и тепло круглый год) • предчистовая отделка — возможность сделать ремонт под себя • большая лоджия ⸻

Отличная локация: В шаговой доступности: • (будет строиться Аквапарк) • Аллея  для прогулок и отдыха. Вид на Горы Острая, Медовая, Развалка, Верблюд.  Спокойная  река. Тихий, зелёный район с чистым воздухом. ⸻

Инфраструктура:• быстрый доступ к городам Кисловодск, Минеральные воды и Пятигорск.  • просторная парковка: закрытая и открытая ⸻ Отличный вариант как для проживания, так и для инвестиций. Квартира в новом доме в востребованном районе — ликвидный и перспективный объект.

Звоните, чтобы узнать подробности и записаться на просмотр! 
Ваш персональный специалист по недвижимости Андрей. 

Срочная продажа

Квартира 2 300 000 ₽
Первомайский п., Минераловодский Район, Восточная ул.

Продается 1-комнатная квартира, п. Первомайский

Локация: Тихий и зеленый район, но при этом всё необходимое в шаговой доступности:
школы,...

Квартира 3 100 000 ₽
Минеральные Воды, Минераловодский Район, Советская ул.

Продается 1-ая квартира в первом микрорайоне

Развитая инфраструктура - в шаговой доступности благоустроенный сквер,
супермаркеты, городская поликлиника, школы...

Квартира 7 100 000 ₽
Пятигорск, городской округ Пятигорск, 40 лет Октября ул.

№ номер объекта: 5784

Продаётся 2 ком квартира

Продаётся 2 ком квартира в самом престижном районе города...

Квартира 6 999 999,00 ₽
Пятигорск, городской округ Пятигорск, Матвеева ул.

Продается квартира 3-х комнатная квартира в 5-ти минутах от центра города!

О квартире: 1/9 этаж, общая площадь квартиры 65,...

Квартира 3 900 000 ₽
Ессентукская ст-ца, Предгорный Район, Гагарина ул.

Объект номер 6175

Продается 1 комнатная квартира. Квартира светлая, теплая, просторная. Удачный 5 этаж.
В квартире сделана предчистовая отделка,...

Квартира 7 000 000 ₽
Ессентуки, Ессентуки, Маяковского ул.

№ объекта: 6257
Продается квартира: продается 3 ком квартира в курортной зоне в г.Ессентуки. О квартире: Светлая, уютная квартира расположена...

Выбрано 0

Вы можете оставить телефон или email для скорейшей связи